-
選択中の条件3階以上条件クリア
メールでお知らせします -
選択中の条件3階以上条件クリア
メールでお知らせします -
過去物件を見る
過去に掲載されていた物件情報を閲覧できます。物件を見る目を磨きましょう!
-
-
該当物件数1076件中、1件〜20件を表示しています
New
江戸川区瑞江2(瑞江駅 徒歩1分)の居抜き貸店舗

登録日:2025-09-05
最寄り駅 | 都営新宿線 瑞江 徒歩 1分 | ||
---|---|---|---|
賃料/坪単価 | 51.7万円/6,986円 | 階数/面積 | 地上4階/74坪(247.045m2) |
所在地 | 江戸川区瑞江2 | 前テナント/ 希望譲渡額 |
居酒屋/70万円 |
出店可能業態 | 重飲食 軽飲食 バー・クラブ 美容室・理容室 サロン(マッサージ・エステ・ネイルなど) 医療・歯科・クリニック 物販・小売 ジム・教室・スタジオ その他サービス・その他 |
居酒屋居抜き 重飲食相談可 看板掲載範囲広し
New
中央区銀座8(銀座駅 徒歩5分)の居抜き貸店舗

登録日:2025-09-05
最寄り駅 | 東京メトロ銀座線 銀座 徒歩 5分 | ||
---|---|---|---|
賃料/坪単価 | 163.35万円/29,700円 | 階数/面積 | 地上6階/55坪(181.82m2) |
所在地 | 中央区銀座8 | 前テナント/ 希望譲渡額 |
鉄板焼き/相談 |
出店可能業態 | 重飲食 軽飲食 バー・クラブ 美容室・理容室 サロン(マッサージ・エステ・ネイルなど) 医療・歯科・クリニック 物販・小売 ジム・教室・スタジオ その他サービス・その他 |
★内覧会 9月12日(金)14時★鉄板焼き居抜き インバウンド集客大の銀座エリア
New
港区六本木3(六本木駅 徒歩1分)の居抜き貸店舗

登録日:2025-09-05
最寄り駅 | 東京メトロ日比谷線 六本木 徒歩 1分 | ||
---|---|---|---|
賃料/坪単価 | 140万円/40,000円 | 階数/面積 | 地上7階/35坪(115.7m2) |
所在地 | 港区六本木3 | 前テナント/ 希望譲渡額 |
クラブ/相談 |
出店可能業態 | バー・クラブ |
諸条件はご相談ください
New
文京区本駒込2(千石駅 徒歩2分)の貸店舗
飲食店不可
登録日:2025-09-05
最寄り駅 | 都営三田線 千石 徒歩 2分 | ||
---|---|---|---|
賃料/坪単価 | 99.733万円/19,800円 | 階数/面積 | 地上8階/50.37坪(166.5m2) |
所在地 | 文京区本駒込2 | 前テナント/ 希望譲渡額 |
|
出店可能業態 | サロン(マッサージ・エステ・ネイルなど) 医療・歯科・クリニック 物販・小売 ジム・教室・スタジオ その他サービス・その他 |
白山通りに面しており視認性の高い物件です!
New
港区赤坂4(赤坂駅 徒歩3分)の居抜き貸店舗

登録日:2025-09-05
最寄り駅 | 東京メトロ千代田線 赤坂 徒歩 3分 | ||
---|---|---|---|
賃料/坪単価 | 14万円/20,029円 | 階数/面積 | 地上3階/6.99坪(23.11m2) |
所在地 | 港区赤坂4 | 前テナント/ 希望譲渡額 |
バー/ |
出店可能業態 | 軽飲食 バー・クラブ |
赤坂駅徒歩3分 バー居抜き物件 階段3階
New
船橋市前原西2(津田沼駅 徒歩3分)の居抜き貸店舗

登録日:2025-09-05
最寄り駅 | JR総武本線 津田沼 徒歩 3分 | ||
---|---|---|---|
賃料/坪単価 | 68.31万円/21,769円 | 階数/面積 | 地上3階/31.38坪(103.76m2) |
所在地 | 船橋市前原西2 | 前テナント/ 希望譲渡額 |
ガールズバー/ |
出店可能業態 | 重飲食 軽飲食 その他サービス・その他 |
津田沼駅徒歩3分 ガールズバーの居抜き物件 駐車場有
New
横浜市中区南仲通2(関内駅 徒歩5分)の居抜き貸店舗

登録日:2025-09-05
最寄り駅 | JR京浜東北・根岸線 関内 徒歩 5分 | ||
---|---|---|---|
賃料/坪単価 | 30.61万円/18,699円 | 階数/面積 | 地上6階/16.37坪(54.12m2) |
所在地 | 横浜市中区南仲通2 | 前テナント/ 希望譲渡額 |
バー/ |
出店可能業態 | 重飲食 軽飲食 バー・クラブ その他サービス・その他 |
◎横浜エクセレントⅫ◎603号室◎一度ご覧ください◎
New
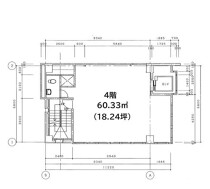
松戸市本町4(松戸駅 徒歩1分)の貸店舗
飲食店不可
登録日:2025-09-05
最寄り駅 | JR常磐線 松戸 徒歩 1分 | ||
---|---|---|---|
賃料/坪単価 | 33万円/18,092円 | 階数/面積 | 地上4階/18.24坪(60.33m2) |
所在地 | 松戸市本町4 | 前テナント/ 希望譲渡額 |
|
出店可能業態 | サロン(マッサージ・エステ・ネイルなど) 医療・歯科・クリニック ジム・教室・スタジオ その他サービス・その他 |
松戸駅徒歩1分 スケルトン物件
New
船橋市本町4(船橋駅 徒歩4分)の貸店舗
飲食店不可
登録日:2025-09-05
最寄り駅 | JR総武本線 船橋 徒歩 4分 | ||
---|---|---|---|
賃料/坪単価 | 61.631万円/15,400円 | 階数/面積 | 地上4階/40.02坪(132.3m2) |
所在地 | 船橋市本町4 | 前テナント/ 希望譲渡額 |
|
出店可能業態 | その他サービス・その他 |
船橋駅徒歩4分 スケルトン物件
New
川越市菅原町(川越駅 徒歩7分)の貸店舗
飲食店不可
登録日:2025-09-05
最寄り駅 | JR川越線 川越 徒歩 7分 | ||
---|---|---|---|
賃料/坪単価 | 26.4万円/10,740円 | 階数/面積 | 地上3階/24.58坪(81.25m2) |
所在地 | 川越市菅原町 | 前テナント/ 希望譲渡額 |
|
出店可能業態 | その他サービス・その他 |
諸条件はご相談ください
New
渋谷区恵比寿西2(恵比寿駅 徒歩6分)の貸店舗
飲食店不可
登録日:2025-09-05
最寄り駅 | JR山手線 恵比寿 徒歩 6分 | ||
---|---|---|---|
賃料/坪単価 | 56万円/23,314円 | 階数/面積 | 地上3階/24.02坪(79.4m2) |
所在地 | 渋谷区恵比寿西2 | 前テナント/ 希望譲渡額 |
|
出店可能業態 | サロン(マッサージ・エステ・ネイルなど) 医療・歯科・クリニック ジム・教室・スタジオ その他サービス・その他 |
諸条件はご相談ください
New
市川市南八幡5(本八幡駅 徒歩5分)の貸店舗
飲食店不可
登録日:2025-09-05
最寄り駅 | JR総武線 本八幡 徒歩 5分 | ||
---|---|---|---|
賃料/坪単価 | 66万円/21,113円 | 階数/面積 | 地上3階/31.26坪(103.35m2) |
所在地 | 市川市南八幡5 | 前テナント/ 希望譲渡額 |
|
出店可能業態 | 医療・歯科・クリニック |
本八幡駅徒歩5分 スケルトン物件
New
松戸市本町(松戸駅 徒歩2分)の貸店舗

登録日:2025-09-05
最寄り駅 | JR常磐線 松戸 徒歩 2分 | ||
---|---|---|---|
賃料/坪単価 | 61.6万円/9,430円 | 階数/面積 | 地上4階/65.32坪(215.94m2) |
所在地 | 松戸市本町 | 前テナント/ 希望譲渡額 |
|
出店可能業態 | 重飲食 軽飲食 |
諸条件はご相談ください
New
渋谷区渋谷3(渋谷駅 徒歩5分)の貸店舗

登録日:2025-09-05
最寄り駅 | JR山手線 渋谷 徒歩 5分 | ||
---|---|---|---|
賃料/坪単価 | 28.05万円/22,676円 | 階数/面積 | 地上5階/12.37坪(40.89m2) |
所在地 | 渋谷区渋谷3 | 前テナント/ 希望譲渡額 |
|
出店可能業態 | 重飲食 軽飲食 バー・クラブ |
【明治通り沿い】周辺人通り多く、カフェやダイニングバーにおススメ★
New
所沢市日吉町(所沢駅 徒歩3分)の貸店舗

登録日:2025-09-05
最寄り駅 | 西武池袋線 所沢 徒歩 3分 | ||
---|---|---|---|
賃料/坪単価 | 69.3万円/12,674円 | 階数/面積 | 地上5階/54.68坪(180.77m2) |
所在地 | 所沢市日吉町 | 前テナント/ 希望譲渡額 |
美容サロン/ |
出店可能業態 | 軽飲食 美容室・理容室 サロン(マッサージ・エステ・ネイルなど) 医療・歯科・クリニック 物販・小売 ジム・教室・スタジオ その他サービス・その他 |
諸条件はご相談ください
New
横浜市戸塚区品濃町(東戸塚駅 徒歩1分)の貸店舗

登録日:2025-09-05
最寄り駅 | JR横須賀線 東戸塚 徒歩 1分 | ||
---|---|---|---|
賃料/坪単価 | 94.578万円/11,000円 | 階数/面積 | 地上7階/85.98坪(284.23m2) |
所在地 | 横浜市戸塚区品濃町 | 前テナント/ 希望譲渡額 |
|
出店可能業態 | 重飲食 軽飲食 美容室・理容室 サロン(マッサージ・エステ・ネイルなど) 医療・歯科・クリニック 物販・小売 ジム・教室・スタジオ その他サービス・その他 |
諸条件はご相談ください
New
新宿区津久戸町(飯田橋駅 徒歩4分)の貸店舗

登録日:2025-09-05
最寄り駅 | JR総武線 飯田橋 徒歩 4分 | ||
---|---|---|---|
賃料/坪単価 | 66万円/35,181円 | 階数/面積 | 地上4階/18.76坪(62.01m2) |
所在地 | 新宿区津久戸町 | 前テナント/ 希望譲渡額 |
新築/ |
出店可能業態 | 重飲食 軽飲食 バー・クラブ 美容室・理容室 サロン(マッサージ・エステ・ネイルなど) 医療・歯科・クリニック 物販・小売 ジム・教室・スタジオ その他サービス・その他 |
人気の神楽坂 ガラス張りのお洒落な新築飲食可能店舗
New
藤沢市藤沢(藤沢駅 徒歩2分)の貸店舗
飲食店不可
登録日:2025-09-05
最寄り駅 | JR東海道本線 藤沢 徒歩 2分 | ||
---|---|---|---|
賃料/坪単価 | 140万円/9,831円 | 階数/面積 | 地上4階/142.41坪(470.78m2) |
所在地 | 藤沢市藤沢 | 前テナント/ 希望譲渡額 |
事務所/ |
出店可能業態 | 美容室・理容室 サロン(マッサージ・エステ・ネイルなど) 医療・歯科・クリニック 物販・小売 ジム・教室・スタジオ その他サービス・その他 |
諸条件はご相談ください
New
八王子市明神町4(八王子駅 徒歩6分)の居抜き貸店舗

登録日:2025-09-05
最寄り駅 | JR中央線 八王子 徒歩 6分 | ||
---|---|---|---|
賃料/坪単価 | 23.1万円/16,800円 | 階数/面積 | 地上4階/13.75坪(45.45m2) |
所在地 | 八王子市明神町4 | 前テナント/ 希望譲渡額 |
/0万円 |
出店可能業態 | 軽飲食 美容室・理容室 サロン(マッサージ・エステ・ネイルなど) 医療・歯科・クリニック 物販・小売 ジム・教室・スタジオ その他サービス・その他 |
★八王子駅・京王八王子駅!軽飲食・物販・サービス・事務所向け南小路沿い物件!
New
新宿区神楽坂5(飯田橋駅 徒歩5分)の貸店舗

登録日:2025-09-05
最寄り駅 | JR中央線 飯田橋 徒歩 5分 | ||
---|---|---|---|
賃料/坪単価 | 100.1万円/31,518円 | 階数/面積 | 地上5階/31.76坪(105.0m2) |
所在地 | 新宿区神楽坂5 | 前テナント/ 希望譲渡額 |
|
出店可能業態 | 重飲食 軽飲食 美容室・理容室 サロン(マッサージ・エステ・ネイルなど) 医療・歯科・クリニック 物販・小売 ジム・教室・スタジオ その他サービス・その他 |
諸条件はご相談ください
M&A案件一覧はこちら 一覧には件の情報を表示しています
飲食店ドットコムM&Aでは飲食店のイチ押しのM&A案件を配信中!1店舗から買取可能! M&A案件とは?
お気に入り物件について
あなたがお気に入り登録済みの物件に、他のユーザーから問い合わせがありました。
気になった場合はお早めにお問い合わせください。